Pöördkäega pukkkraana
Pöördhoovaga pukk-kraana võtab kasutusele väikese kõrgusega neljakandilise kasti põhitala teraskonstruktsiooni. Välimus- ja tootmisstandardid jäljendavad rahvusvahelisi kuulsaid kaubamärke, nagu Kone ja Demag. Struktuur on kompaktne ja võib saavutada maksimaalse võrgu tõstekõrguse.
- Kiire kohaletoimetamine
- Kvaliteedi tagamine
- 24/7 klienditeenindus
Toote tutvustus
1. Meie kohta:
Pöördhoovaga pukk-kraana võtab kasutusele väikese kõrgusega neljakandilise kasti põhitala teraskonstruktsiooni. Välimus- ja tootmisstandardid jäljendavad rahvusvahelisi kuulsaid kaubamärke, nagu Kone ja Demag. Struktuur on kompaktne ja võib saavutada maksimaalse võrgu tõstekõrguse.
Euroopa standardse disainiga elektritõstukiga varustatud tõstmist ja käru liikumist juhib sagedusmuundur, et kraana saaks sujuvalt kiirusel töötada, rahuldada klientide erinevaid kiiruse vajadusi, parandada töö efektiivsust ja lahendada erinevaid materjalide käsitsemise probleeme.

2. Pukk-käru parameetrid:
Swing arm pukk-kraana ostmisel palume esitada järgmised andmed, et saaksime teie vajadused kiiremini kinnitada!
① raskuse tõstmine;
② laius (rööbastee keskelt juhtrööpa keskpunktini);
③ Tõstekõrgus (konksu keskpunkt maandatud);
④ Kas on vaja välist üleulatust (palun esitage üleulatuse pikkus);
⑤ Kas juhtsiinid ja -kaablid on vajalikud? (palun sisestage jooksu pikkus);
⑥ Muud erinõuded. Täpsema info olemasolul andke teada ja anname teile täpsema hinna!

3. Pukk-käru komponent:
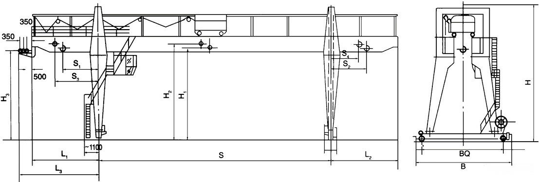
Swing arm pukk-kraana peamised komponendid on põhitala konstruktsioon, tugijalad, jalutustalad, kõndimiskonstruktsioonid, elektriseadmed, redelikabiinid ja muud komponendid.
Põhistruktuur on peamiselt plaatkeevitatud kasti tüüpi struktuur. Selle kaugtala ja tugijalad saab jagada mitmeks osaks, sõlmed on peamiselt ühendatud tihvtiplaatide ja rafineeritud ülitugevate poltidega.
Käru liikumismehhanism: koosneb neljast veoratta kastist.
Tugijalgade sektsioon: tugijalgade sektsioon koosneb jäikadest jalgadest (või on ühendatud painduvate jalgadega). Iga kontakt on ühendatud ülitugevate poltidega, mida on lihtne paigaldada, kiire ja kindlalt ühendatud.
Operatsioonituba ja elektriline juhtimine: operatsioonisaal koosneb operatsiooniruumi korpusest ja elektrilisest juhtpuldist.
Peatala koost: kaugtala koost koosneb peamisest pikisuunalisest talast ja ühendusraamist.
Redeli kokkupanek: Peapikitala ühel küljel on hoolduspersonali käimisplatvorm.
Tõstekäru: Tõstekäru koosneb raamist, käru liikumismehhanismist, vintsist ja rihmarattaplokist.
4. Pukktrolli kohaldatav keskkond:

5. Pukkkäru kandvad osad:
Ohutuskonks, Trossijuhik, Pidurirõngas
6. Pukktrolli transport:

7. Kas pakute liftitööriistu?
Jah, me saame pakkuda igasuguseid tõstetööriistu, nagu tõstetropi rihm, tõsteklamber, haarats, magnet, rihmarattaplokid, konks, lukustusriiv, terastross, kiudköis jne.
Kui soovite rohkem teada, võtke meiega otse ühendust!!
Kuum tags: pöördeõladega pukkkraana, Hiina pöördeõladega pukk-kraana tarnijad, tootjad, tehas







